当前位置:首页 > 案例 > 平面案例 > 百瑞景六期 115平 现代

百瑞景六期




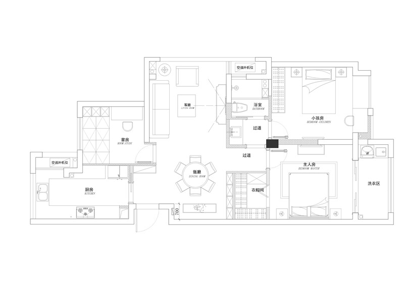
案例信息

楼盘:百瑞景六期

风格:现代

房型:普通

区域:武昌区

面积:115㎡

设计师

欧阳冰洁

查看TA的主页
免费申请设计预案
  • 该设计师实景案例
  • 该设计师全景案例


30秒在线预算报价

×

在线预约

×
免费咨询 索取报价
返回顶部
全国服务热线 400-806-3002
免费报价